
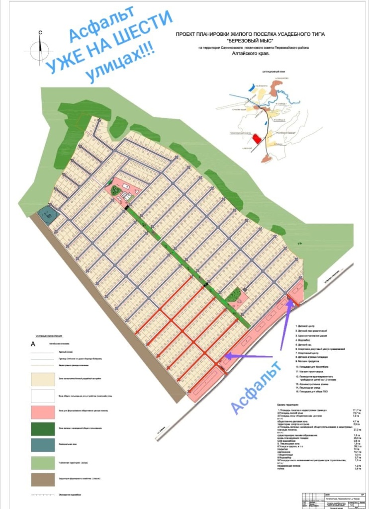
Благоустройство поселка «Березовый мыс» набирает обороты. Мы рады сообщить, что вслед за первыми четырьмя улицами новое асфальтовое покрытие появилось еще на двух. Теперь ровные дороги украшают уже шесть улиц нашего поселка.
Этот результат наглядно демонстрирует, насколько стремительно «Березовый мыс» превращается в комфортабельный и современный населенный пункт с полноценной инфраструктурой. Мы продолжаем работы, чтобы в скором времени все жители могли пользоваться качественными дорогами.
Приглашаем вас лично оценить прогресс! Запишитесь на экскурсию, прогуляйтесь по обновленным улицам и убедитесь, как здесь хорошо.

Направляя свои данные через форму обратной связи, вы даете свое согласие на обработку персональных данных